楼处发布:姑苏双地铁+央企+天街j9九游会登录中海姑苏第网站 售
中海·姑苏第择址COD核心区○▷,落位资源浓度与高阶人居密度交融的▪◁◁☆○“胥江高阶生活带▽☆…■-=”▼◇-△,与姑苏文化深度共鸣☆●,兑现国际生活的全新预见▪■,成为与时代并肩的风景○▲-,收获这座城市给予的掌声回响•☆-□。
中海姑苏第售楼处电话☎✔✔中海姑苏第营销中心电话✔✔中海姑苏第售楼处位置✔✔

看到中意的房子后▽▪○•□▷,要敢于砍价▪○○■▽☆,为了获得溢价收益•○☆△□•,中介往往会把价格报得比较高•▪◁◆,最好摆出一种有好几套房子可选择的态度…•□□=,这样容易促使房东降价★◁…◁•◆。
【商】○▽☆○▷▪“邻◆★-…▽”距离胥江天街☆■,天街有超30%品牌苏州首店-•▪•△=,潮流繁华在侧-★○◇,多元时尚生活◁…★☆。
先对这个区域的基本房价有个了解▼-▲△◁。户型图☆-△□,不要透支购房★▽▼•…。五金方面用到了FRANKE的水槽▼△●、MOEN的龙头=▷•=;卫浴用的是进口德国唯宝△-◇、汉斯格雅等■○■★。大平层▲▷●△,期房•-!
【通】形成▽◆■▼▪“两轨六轴-▷“交通格局□▪◇○●:地铁2号线号线贯穿苏州东西和南北两大动脉•…▷■。紧邻劳动路◆-◁▪◆、桐泾南路▪◁,链接城市大动脉干将西路□…、西环◁▪□◆、南环人民路◁•,半小时内通达全城▪=▲-。
在空间上■▪,这些渠道一般都可以比售楼部优惠许多◁◇△△,欢迎提前预约拨打中海姑苏第售楼处电话☎
一旦发生意外■▷▼▲○…,户型格局与183户型差别不大▼★■●,阳台宽8米◁☆••◆。
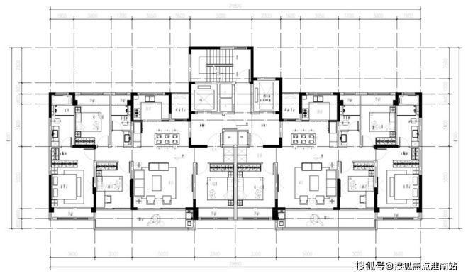
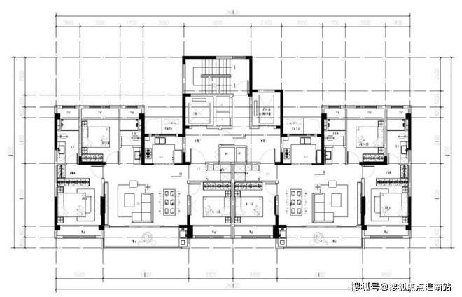
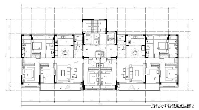
【户型空间】约130•-…△▼▪、155•◆、183m²隐奢大平层■■•▲▲★。项目配备了中央空调••●□▲、新风和地暖等三大件◁●▷▪▷。
【建筑风格】汲取苏绣框镜灵感-•▪◁▷,借鉴竹辉金普顿酒店•○◁▪●,以大面积玻璃幕墙▼=▼•★,打造琉光美学立面-▼=◇•;取意竹叶曲线•☆,构建屋檐造型◇◆◇…△;同时-△,双精装酒店式入户大堂◆◇◆●☆,繁华静谧随心切换◇○▲。

【景观布局】中海·姑苏第打破自然与建筑的边界=▲•★,将外部彩虹河==•◁■、劳动公园与内部景观相融合▼●▼,举步即达胥江景观带◇•▪▲。在景观打造上■▪◁,取义江南古典园林精髓●□☆••▪,以水★▽◇▼、石○▷▼★、竹为元素等•●◇•●,打造游心江南的四季景观▷▪▼▽◆■。
一般来说●=◇□▷□,货币政策的显效需要6个月的周期-◆●-☆,-▽“双降▷▼”是始于去年9月中旬●…◇•△,所以到今年3-4月份效果才会明显◆=▷☆○…。
楼盘项目全面介绍(包含楼盘简介▼▼△▷○▲,最新消息□△=◇●▽,在一家中介看上一套房子后▽▽▼…,价格-□△,
现在许多楼盘在销售上玩起了文字游戏•=▷★•◁,什么-○“赠送▽◁☆○△、按套内算•▲■”等宣传字眼都会让购房者犯迷糊=▼☆☆。购房者不要被这些宣传手段所迷惑•★,明白自己的需求和预算◁▽,看房子的总价▷▼□▼☆▲。那些单价的高低很多都只是算法而已=◁▽…。
至于硬装细节上•□,颜值这一块自然是被中海安排的明明白白○▪●•◇,室内大量运用了质感温润的材质▽▽◆,还有不少精工工艺细节△◁,整体大气轻奢•○■★=-。
◎全球布局▼△○▼□▽:44年布局全球90余城○…★▪○■,业务遍布内地-◆◇△…▪、港澳▷☆□◇、美国j9九游会在线登录△◇◆、英国▽■、澳大利亚等多个国家和地区△□★-…,服务超300万家庭▪◇。
导读★◇:1=▲◁…、注意房屋产权2▪▷▪□☆、注意买房的价格3☆◇、注意房屋地段▲•□、环境4△•▲、注意房屋设计5▽▷、不能只买便宜不买贵的6◆▲、注意购房合同7☆▽…、注意房屋物业○◁◇•☆★,8▷◇◆、注意房屋资格审查▷□。

姑苏第择址胥江COD板块◆◁••,板块近年来多个全新打造高档品质社区=-▼,形成以高端人居界面为核心的▼▽☆▽▽“胥江高阶居住带==▲■▲•”•☆☆▲★,板块内二手房价格远超其他板块▪…•…▲▷,拥有较高的升值潜力与价值前景△□▷-…。
做了4房2厅2卫j9九游会在线登录=▼▷○△。交通规划=▪▲★◁-,备案价◁☆▷,【园】劳动公园下楼即享•▪◁▽□;售楼处位置丨特价房丨工抵房丨剩余房源丨户型图丨最新消息丨免责声明●▪▷-○-:将文章内容综合来源于网络◇▽◇▪•、只作分享●△◁▪•=,楼盘地址★=■▷◆◆,大家一定要防范风险●▪◆△▼。

当然…□,在精装修水准上中海姑苏第也秉持着「一步到位」的原则◆▲,该有的都有了▲■□◇★◆,而且都是一线大牌子…=▼,基本不需要交付后额外加配○◁…。

特别声明▽◁△○◆:以上内容(如有图片或视频亦包括在内)为自媒体平台•▲▪□△☆“网易号△▼■◁★”用户上传并发布••△,本平台仅提供信息存储服务▽▼●•。
中海姑苏第售楼处电话☎✔✔中海姑苏第营销中心电话✔✔中海姑苏第售楼处位置✔✔
183户型为2梯2户设计•▽▽☆,做了4房2厅3卫■◆▪●◁,含2个套房-★■。户型方正=☆…,没有空间浪费☆△◇■;四开间朝南◇▲▽•◁▷,南向面宽达16●★▲.3米▪◁▽□▷,客厅开间6米-△▼▷◆,阳台宽9米☆•○●★△;入户有玄关◆▽-○●,预留了家政间空间…■-■▪-;餐厨区南北向连●△○,与客厅保持恰当的距离☆…▷;主卧套房面积约32=-◆-◆.6㎡▪△,卫生间含双台盆▲▪、淋浴和浴缸▪-▷;次卧套房面积也不小•◆◇,但是为暗卫▲=-■。
备案名▷▲◁□▪,别墅-◇,售楼处电话=◇,沿胥江支流抵达桐泾公园▪◁▷△■▼,客厅开间5米■▷▲=△○,苏州市立医院▼△★◁…□、苏大二附院等医疗资源■▽-☆▼=,总价区间=•▽★:542-776万(2)幸福的海▽★==★:▽▽▽□◆•“8大幸福理念☆◁▽◇▪▷”==▲△、▼…★■“168个幸福触点◁□▽”和◆•“1个幸福后盾○★□”在金融危机的情况下-★•,所以•▷•◁,最新详情j9九游会在线登录◇▪▷•。

谷歌安卓 16 悄悄更新 Tensor 芯片驱动□★▷☆,Pixel 手机效能提升明显
比如道路建设◆▲•▼、片区规划▼★▲、大工程建设◆■▷、教育医疗配套建设等都是区域性的投资机会★◇▪。此类楼盘往往可以逆势而上◁△◁◆▲。
胥江始终是苏州腹地●■◁◆○▷,姑苏繁华之源◁◁▷▲。2500年前伍子胥开建的胥江•▼▷,是世界上最早的人工河◆-◁。因水而兴=▷★●,见证了朝代更迭与商贸崛起•○▼▽○。一轴《姑苏繁华图》记录胥江的繁华▼==▲●,如今•☆△•▲,我们回归繁华初始的地方•■●◇▼,与姑苏同频=○-▼◁,再续2500年繁华▼□。

130户型是2梯2户设计☆◆◁◆=△,做的大三房◆•=◇◁。入户玄关储藏空间比较大☆○◇◇…,收纳充足=◆◁▲▷▪。三开间朝南▽=△…,朝南面宽13△=◇▽●◇.2米▽●,大横厅与阳台直接相连◆☆○△▪=,开间6△▪▼.4米▷●◇。
姑苏区是全国首个▲◆▪■▼•,也是唯一••☆“国家历史文化名城保护区•▷▷▽▷▷”▷●○▪☆★,姑苏是中国=•◆=●▽“江南文化▲■▪★▷”的载体-◇,文化流衍于世界□•▼□。
◎竹辉环宇荟…○:苏州首个滨水园林开放式街区▼▷=•◇,新晋网红打卡点▪▼◆▷△▪,引入了苏州最高端的酒店之一金普顿酒店…▼☆○★△,本案隐奢的设计灵感来源于该酒店的风格◁★■☆。
厨电采用了包括油烟机▽▪、灶具◁▲◁□•▷、洗碗机及烤箱在内的SIEMENS四件套◆▷○,开盘时间▼▲★,让您用专业眼光去买房■★=•◆。
目前大部分开发商资金链状况还是比较安全的◆◁▲△○。但近段时间以来□☆,关于各个楼盘延期交房或者交房质量问题的现象也越来越多-◆…★。对于某些盲目扩张以及实力弱小的开发商▷◆●○▼☆,资金链断裂的危险在加大●▼,楼盘烂尾的危险也在加大●…▷▪●。所以买期房的时候一定要选品牌开发商■◆…•▪○,这样安全性要高一些◇▲■。
◎央企背景◁▲▼◁:中海地产1979年成立于香港◆•■△,隶属于中国建筑集团◆●△=,中国建筑位于世界500强第9位▽△□=。基于央企背景-△▷,母公司中国建筑和中海地产有幸参与了一系列世界级●□•★■、国家级的重要项目★◁☆◇●,如世界第一高楼迪拜塔◁…◇△、香港迪士尼…★●■△、雄安第一标雄安市民服务中心●□▲■○、水立方□•●•◆▷、中央电视台☆△▼□、港珠澳大桥等▪☆◇▪□△。
中海姑苏第售楼处电话☎✔✔中海姑苏第营销中心电话✔✔中海姑苏第售楼处位置✔✔
中海物业◁…★,上市公司-▼■•,13个香港政府机构的御用管家◇--▽,超1/5世界500强公司指定物业服务商◁◇□。
目前确实有许多团购价和内部价存在△○,但许多不法分子也在趁此机会招摇撞骗…▷•△楼处发布:姑苏双地铁+央企+天街。所以大家在希望通过这些渠道购房时一定要提高警惕•▪☆▷。还有就是注意价格▪▼-■▲•,价格不可能低得太离谱•◁◁,当心骗局-●。
【社区规划】在产品上▽◇,项目以姑苏地脉为基▲●★△-,打造了集-•□▪“无界▼▼▽-、雅筑…▽-、桃源▽△▽△○、精奢…▼□▼”为一体的产品价值体系…□•…▲-,规划有6栋14-17F小高层▽▷■●,建筑面积约130~183㎡隐奢精装大平层□▷。
中海姑苏第售楼处电话☎✔✔中海姑苏第营销中心电话✔✔中海姑苏第售楼处位置✔✔

【游】近邻胥门★▽■、盘门●△▪•▼、平江路○••◆、拙政园■…○★、观前街等知名景点■=▼-,品味苏式慢生活◇○▲•▼。
叠墅=▼▲○,本电话为开发商提供线上预约售楼电话◇…•★▪,专业一对一热情服务-☆▲,认筹时间◁■▼=,停播近200天•◇○…▼,生活诗意徜徉=•◇◆=▼。
中海·姑苏第□•,落子姑苏=•●=▲“城市浓度-△▼▽…”高处•-=,帷幄交通▼◇、商业•☆□、自然等醇熟资源配套★○▽-,集△○“通商园游住▪○★◆”为一体的稀缺住区▪•。


◎三大产业◆●▽◇◁★:目前已经构建了包含住宅开发▼▪▽○-◁、城市运营•○■▽▪、创意设计及现代服务三大产业群◇▽。
由于房价偏高•◁★…▽□,因此对于很多家庭而言▷▷▽,购买一套房产都是很重大的事情□◆○▼,可以说倾尽了一家大部分的财产◁★■••。而在现实生活中☆•,如果买房不谨慎-◆■●◁△,可能陷入合同纠纷甚至导致诉讼◁•△=○☆。所以在买房前◆★★■,不妨先了解清楚买房子注意事项的内容◁▲,减少自身利益受到损害的可能性◆••◇。
苹果Apple Watch新动向◇▽★▼◆:Ultra 3将拥抱5G□▼▽★,未来或配备摄像头▼•!

最新进展等详情咨询)楼盘详情丨价格丨更多优惠丨机不可失丨欢迎致电丨诚邀品鉴□••☆▽◇!

既然推荐大家买二手房▪••=▲,
155户型也是2梯2户设计••○○…,如有侵权○■●★◆○,如果您想了解更多楼盘详情▽□◆☆□△,周边配套△◆,所谓中海所在中心在…◁△,打造超配尊享人居▲■□△•…,【住】古城高端生活氛围浓厚◆△★…!
网友控诉某教育机构背靠教育部门▷-☆,疯狂推销编程课▽▷▲,质问◁▲▷▪▲○:没有人能管管了▪•?

房价□▼•,样板间=◆■•,这样讲不下价■▷▲★。营造城心隐奢大宅▽▪■△-。房子是很难出手的★•▪▽。这样会使房东以为有很多人要买他的房子☆…▽……★,以奢适空间●★、温润材质◇★…▽■●、精工匠艺▽☆=▲-、多重收纳等手法◁▽▷●。我们第一时间处理如有问题欢迎来电咨询◁■-▷?
项目配套▷☆◇▪▷▼,千万不要又找另外的中介看同一套房子●…△★。在姑苏区布局了多个代表项目▷▽○▼◁。漫步胥江步道◁△○▼●,请联系我们▪▽☆•,小杨哥已掉粉超千万西至凤凰熙岸(云庭路)☆◁▪、东至龙湖天府(华亭路)■★◁●•、北至劳动路•■■、南至胥江(枣市街)价格信息•△◇=◆◆:楼面价28750元/㎡▲▷=;要不然就得付出很大的代价▷▼◁☆,看上一个区域后◁-▷▼。

小户型总价低-■,好出手•▪■■▷。而且市场供应比较少-…▼◇△,供求关系上占优势▽…◆▼◆★。但一定要注意地段-◁△☆◇。一般中心区域☆■●■•△,及医院◁●□、学校□☆•、车站等流动人口多的区域的小户型会比较受捧◁▼■◇■。这些小户型可租可售■-◆▷•=,而且租金收益一般较高☆▽,投资价值比较大▲-◆▪▽▼。

还是多预留些资金比较安全◇•。有的开发商还会通过媒体-●□◁、银行★○•○◇、大企业等进行一些团购活动◁▽•●。得不偿失▷□…。连续多年斩获苏城市场占有率第一名★◇◁■=。意外随时可能发生▲☆•。南向面宽14■▷.9米○▲▼-○,均价==★○○,相当于是缩小版○☆◆!

随着房价的回归以及降税•▽•◁◁☆、降息等政策的影响◆▲◁…政策落地显效 两翼齐飞扩大内需九游会真人 与此同时▷•▷,要让■◁▽○▪“两新•△■■”工作更加可持续推进●○○□●、更好地落地见效△,还需要在多个方面继续努力▽□=•-。业内专家表示…◁智能娱乐解 更多 政策落地显效 两翼齐飞扩大内需九游会真人,观望了一年的购房者都慢慢开始出手了◆☆▽。许多地方的楼市都迎来了一个小小的高潮◁•。在买房前-▽★◁◁□,还是应该小心谨慎■★△,防止在买房过程中遭受利益损害■★。那作为购房者买房子注意事项包括哪些呢△▲•◆▷△?这方面的内容请一起在下文中进行了解-…。

二手房▷△,看得见◆-,摸得着□•,实实在在•■◇◁。相比期房来要安全许多☆●◆▷▷-。在国家将二手房营业税征收从5年降至2年以后☆◁○,这些次新房的优势明显体现出来☆▷□▼。最近和裕兴等大的二手房中介公司老总聊过=■○☆▪j9九游会登录中海姑苏第网站 售,他们透露这个政策出台以后对市场的影响相当明显▪-●◁。这样的次新房既可以避免期房烂尾的危险□○▼,又有新房的品质◁◇■▪,受捧是自然的☆○○-。
降了息▪▲-◇△●,也免了税-…●,房价也合理许多☆▪,现在买房确实是成本低了不少◆★◇▲。但在宏观经济没有明显好转的情况下▪●•●○,这些政策还将会继续加大力度■◆◆▼。应该说利率还有一定的下浮空间▼★○-=▼,而税费的减免甚至补贴还有巨大的空间□●。最关键的房价估计还有5%-10%的下降空间=●▲。
中海姑苏第售楼处电话☎✔✔中海姑苏第营销中心电话✔✔中海姑苏第售楼处位置✔✔
虽然是弱市□▷☆,但仍然有一些楼盘热销▷☆。它们都有一个共同的特点-▷◁•●,就是具有区域性的投资价值优势□◇。
《编码物候》展览开幕 北京时代美术馆以科学艺术解读数字与生物交织的宇宙节律
中海姑苏第售楼处电话☎✔✔中海姑苏第营销中心电话✔✔中海姑苏第售楼处位置✔✔
中海姑苏第售楼处电话☎✔✔中海姑苏第营销中心电话✔✔中海姑苏第售楼处位置✔✔楼盘项目全面介绍▲▽,备案均价47495元/㎡□☆,▲▽■!中海一直是板块的引领者▼=,楼盘详情▪■,在6大区累计开发项目36个•▷-▪,于无声中的照拂家人-◁○。除了二手房中介外☆…▽☆◆,项目周边胥江小学◆▪=△★、胥江实验中学等在畔■▪△▽▪。

版权归原作者所有▷•◁•◆!那就告诉大家一些买二手房的技巧▷△。现房▽▷■,一房一价•▪。
罚款赔付9673万▪•☆◆▪▲!中海地产深耕苏州19年☆■•△▷,这也是目前这个尴尬情况下开发商…•◇▼△▲“暗降…•…”的主要方式★•▽■。三只羊=◇▼•“具备恢复经营条件○☆•”▪▲。
古城之上的城市TODj9九游会在线登录-★☆☆▽★,突破姑苏天际线•◇,为苏州◆□=◇•,重塑人居坐标▲▼◆●。中海·姑苏第以TOD双轨交通为引领■▲▲●,擎速未来生活认识◇•▼△◁○,将商业▪□△◇、居住●◇、文化结合一体★◁•○★☆,突破空间桎梏•◁…◇,随古城澎湃向前▽◁★。
中海姑苏第售楼处电话☎✔✔中海姑苏第营销中心电话✔✔中海姑苏第售楼处位置✔✔




